Saint-Maur-des-Fossés (94)
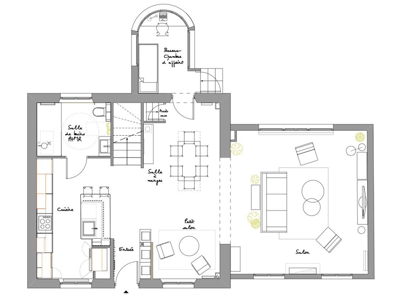
Dans cette maison des années 50, le rez-de-chaussée a été totalement restructuré et rénové dans un esprit contemporain, épuré et chaleureux.
Les clients souhaitaient un espace largement ouvert donnant sur un beau jardin pour bénéficier de la lumière naturelle, et ce avec une double-exposition.
Cette restructuration avait également pour but de rendre cet espace accessible à une personne à mobilité réduite.
Dans cette optique, tout le volume de ce rez-de-chaussée s’organise en enfilade.
La demande des clients en terme de décoration : tons clairs, bois, touches de métal noir et ambiance zen.
SOWdesign a imaginé pour l’entrée un jeu de tasseaux et claustra, nous amenant à la cuisine et dévoilant ensuite tout l’espace à vivre de presque 100m2.
Une belle cuisine à l’esprit graphique en laqué blanc et placage noyer avec des plans de travail en granit noir du Zimbabwe, remplace l’ancienne salle à manger.
L’éclairage a été particulièrement soigné afin de donner à cet espace une atmosphère apaisante et chaude.
Nous avons proposé de délimiter la salle à manger du salon par un panneau décoratif au motif floral XXL.
Enfin, à la demande des clients, un bureau/chambre d’appoint et une salle d’eau avec un accès PHMR* pour répondre à un besoin ponctuel, viennent enrichir ce
rez-de-chaussée accueillant et chaleureux.
Les tons clairs et bois procurent ainsi à ce nouvel espace de vie familial une ambiance paisible et zen.
*PHMR : Personne handicapée à mobilité réduite.
Les plans


Les perspectives d’étude du projet
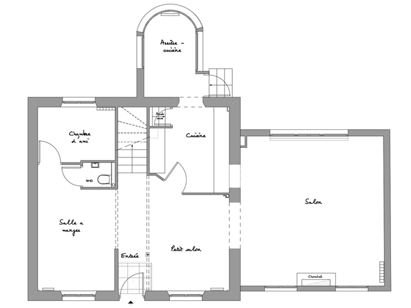
La maison avant travaux



















