C’était une maison « rose-saumonée » – Villemomble (93)
Le rez-de-chaussée de cette maison des années 80 comprenant entrée, salon, cuisine et salle à manger a été restructuré et rénové dans un esprit contemporain avec des tonalités vintage.
La cliente voulait agrandir et ouvrir sa cuisine sur le salon/salle à manger et ainsi bénéficier d’une exposition traversante Est-Ouest.
Présentation du projet
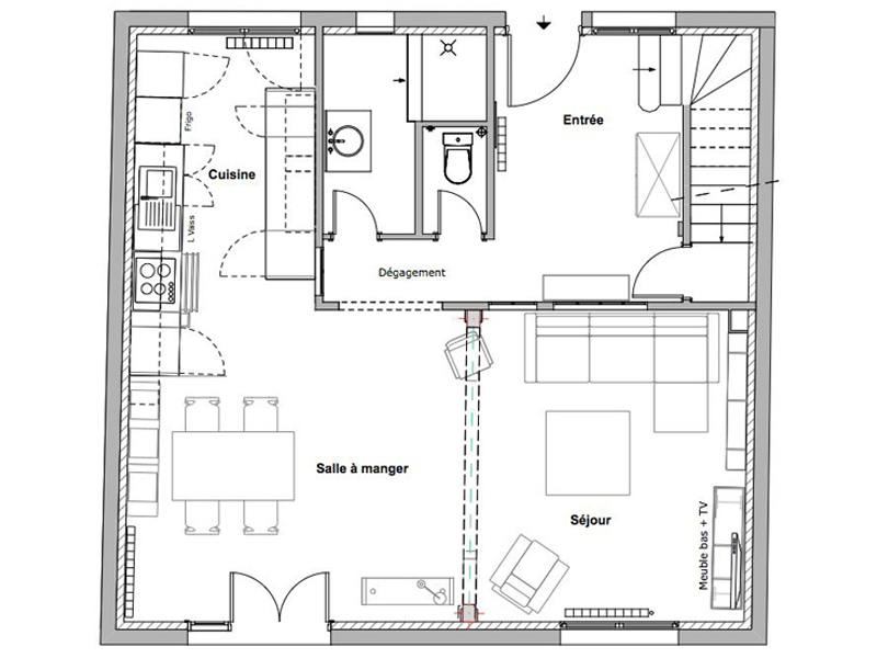
La cloison séparative cuisine/salle à manger a été supprimée. La cuisine a pu ainsi s’étendre sur la salle à manger avec un plan de travail agrandi. Ces 2 pièces sont maintenant en lien direct.
Cette redistribution a également permis de créer un 2ème plan de travail avec des rangements et un espace petit déjeuner dans la cuisine. Elle permet aussi les grandes tablées pour la salle à manger avec extension vers le salon.
Un parquet flottant en chêne avec isolant thermique et phonique a remplacé le carrelage d’origine.
Ce rez-de-chaussée est maintenant largement ouvert et bénéficie de la lumière naturelle avec une double exposition sur toute la longueur de la maison, grâce également aux verrières créées dans l’entrée.
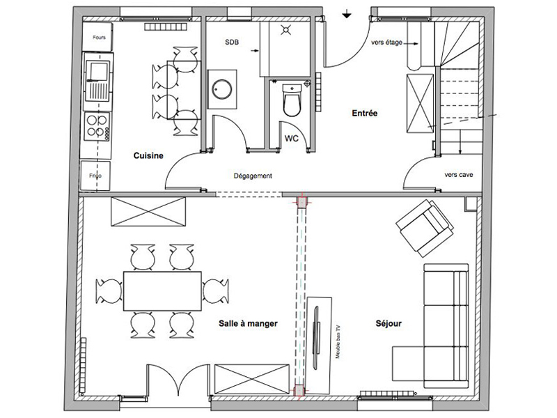
Les plans

La maison après travaux

La maison avant …



Focus

Les radiateurs en fonte peints grossièrement auparavant, ont été décapés, laqués de la même couleur que les murs et cuits au four pour une esthétique magnifique et une finition de qualité et pérenne.
