
Rendez-vous avec la cliente dans un immeuble parisien de 1896 afin de visiter
un appartement pour un projet d’achat.
L’appartement a beaucoup de cachet mais est un peu sombre et en très mauvais état.
Une optimisation de l’espace ainsi qu’une rénovation totale dans un esprit contemporain s’impose.
SOWdesign proposera finalement 2 agencements pour 2 budgets différents.

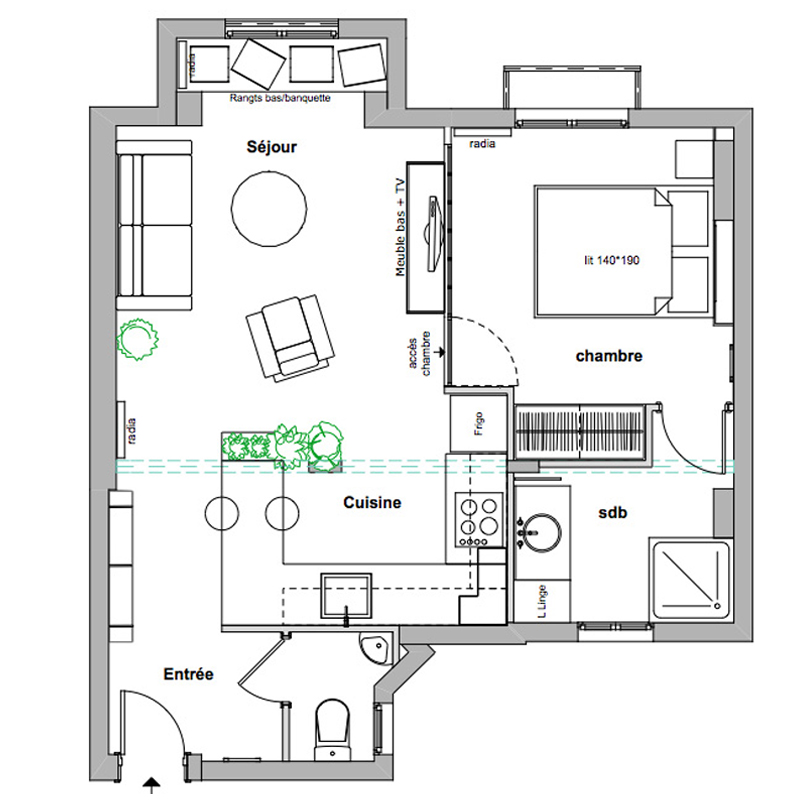
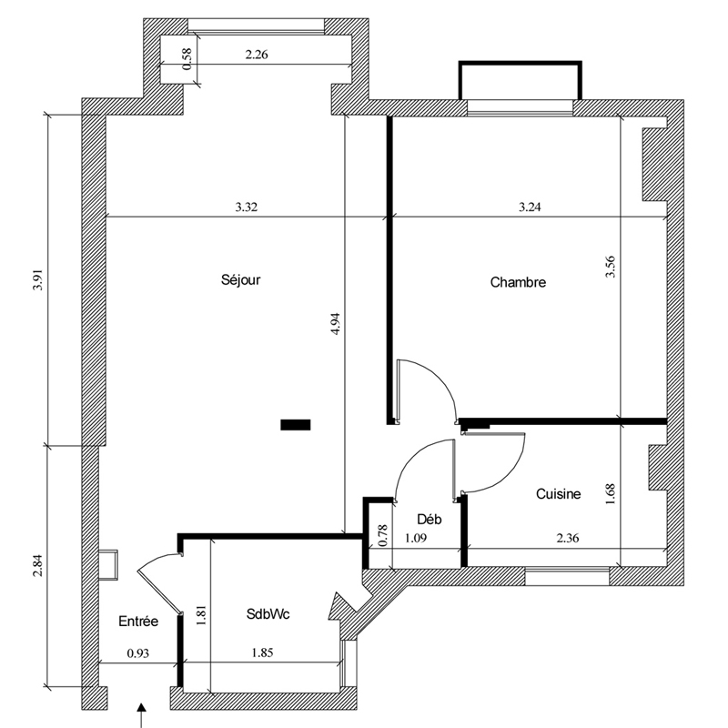
La première proposition (budget réduit) :
- Garder les espaces techniques cuisine et salle de bain en lieu et place :
– Création d’une petite chambre grâce à des verrières.
– Rénovation de la cuisine et de la salle de bains.
– Implantation d’un rangement-dressing sur mesure.
– Large utilisation de la couleur et de carrelages graphiques.
– Peintures aux teintes vintage.




plan-projet-1-small
perspective-globale-projet-1
perspective-cuisine-projet-1
perspective-salon-projet-1
La seconde proposition :
- Restructuration plus importante en modifiant totalement les volumes pour optimiser l’espace :
– Création d’un grand espace cuisine/salon dès l’entrée.
– Création d’une chambre à l’aide d’une verrière pour optimiser la lumière
et implantation d’un rangement-dressing intégré à celle-ci.
– La salle de bain attenante à la chambre remplacera l’ancienne cuisine.
– Utilisation de couleurs douces pour la partie nuit et plus vives pour
la partie jour.



plan-projet-2-small
perspective-globale-projet-2(1)
perspective-cuisine2-salon-projet-2(1)
Après réflexion, la cliente a finalement porté son choix sur un appartement plus récent.
